Park Lodge Avenue, West Drayton, Middlesex, UB7 9FJ
Property Summary
Oaktree (West London) Limited is delighted to present this modern and well-appointed two-bedroom, two-bathroom first-floor apartment, situated at Lexington House, 35 Park Lodge Avenue, West Drayton. The property is set within beautifully landscaped grounds. Its prime location provides easy access to the Elizabeth Line, making it ideal for those commuting to Central London.
Full Details
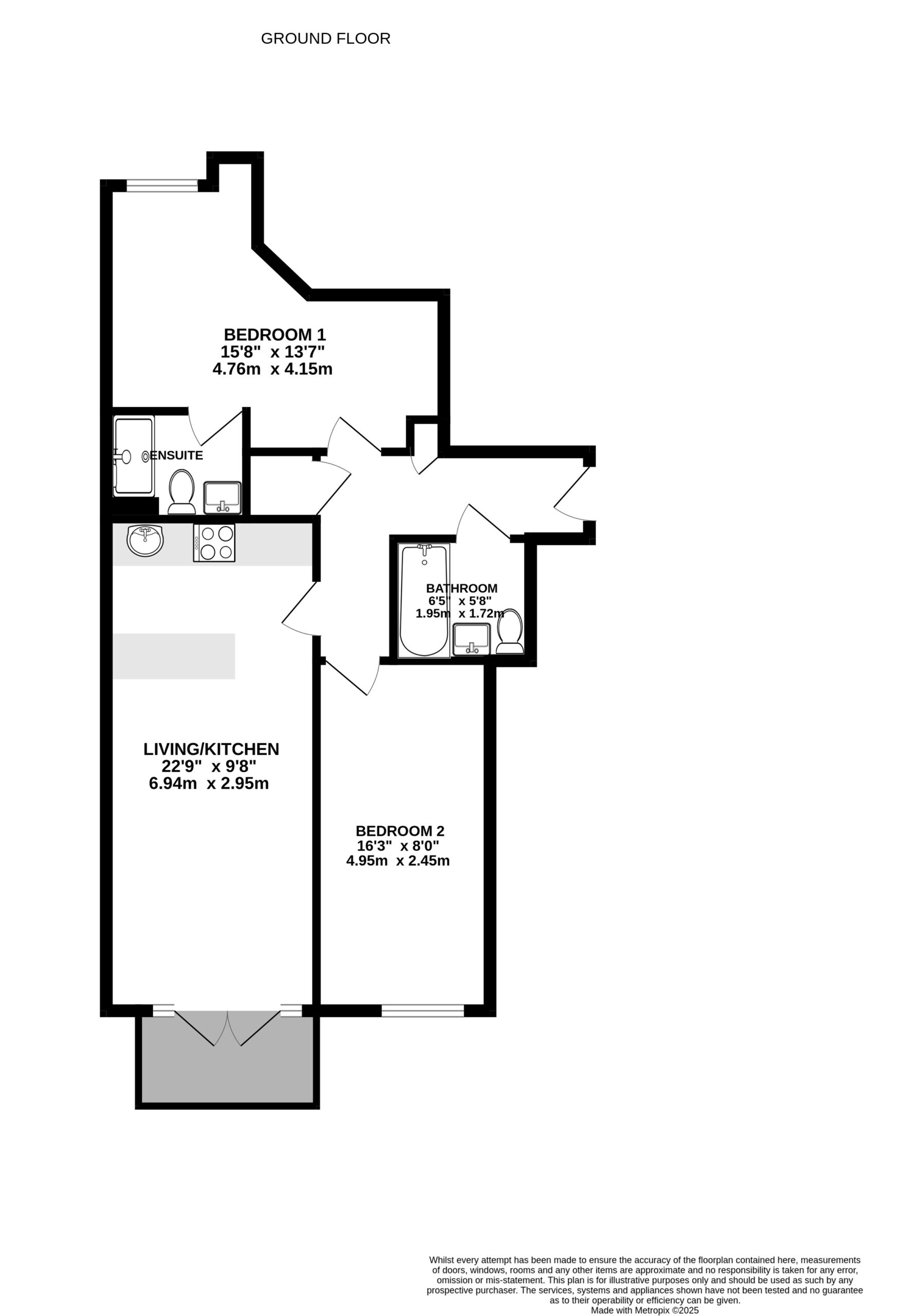
The apartment comprises two spacious double bedrooms, with the master bedroom benefiting from an en-suite shower room. The stylish open-plan living area is perfect for modern living, featuring a fully integrated kitchen with electric hob, oven, washing machine, fridge-freezer, microwave, and an integral dishwasher. The main bathroom is fitted with a bath with an overhead shower. Additional features of the property include electric panel heaters, double-glazed windows, entry phone system and a private balcony. The property also benefits from laminated wooden flooring throughout and offers off-street parking for one vehicle.
As part of the development, residents enjoy access to a concierge service and a well-equipped gym. The property is ideally located just a short walk from West Drayton station, with the Elizabeth Line offering fast connections to Paddington and Central London. The development is also conveniently located just 2 miles from Heathrow Airport, providing excellent transport links for frequent travelers. The M4 and M25 are easily accessible, and the nearby Stockley Park Business Complex and Golf Course add to the appeal of this desirable location.
This well-presented apartment offers an exceptional opportunity for those seeking a modern, low-maintenance home in a highly sought-after location. For further details or to arrange a viewing, please contact us today.
Tenure: Leasehold, 999 years from 2008 (To be confirmed)
Ground rent: £150 per annum
Service charge: approx. £1,500 for 6 months in 2025
EPC Rating: C
The property is currently let under a shorthold tenancy, rent is £1,630 pcm.
VIEWING BY APPOINTMENT THROUGH OAKTREE (WEST LONDON) LTD.
The measurements shown in the floor plan were taken with a laser measuring tape at the widest points of the rooms and are approximate. Appliances (fridge/freezer, cooker, washing machine, dishwasher, etc.), even if mentioned in the description, are NOT included in the sale. Furthermore, they have not been tested, and we cannot confirm that they are in working order or fit for purpose. The central heating has NOT been tested. Buyers are advised to seek verification from their solicitor or surveyor. Some items shown in photographs may NOT be included unless specifically mentioned within the sales particulars. They may, however, be available by separate negotiation. These particulars do not form part of any offer or contract, nor can their accuracy be relied upon by purchasers, who should satisfy themselves by inspection or otherwise.





















