Noel Road, West Acton, London, W3 0JG
Property Summary
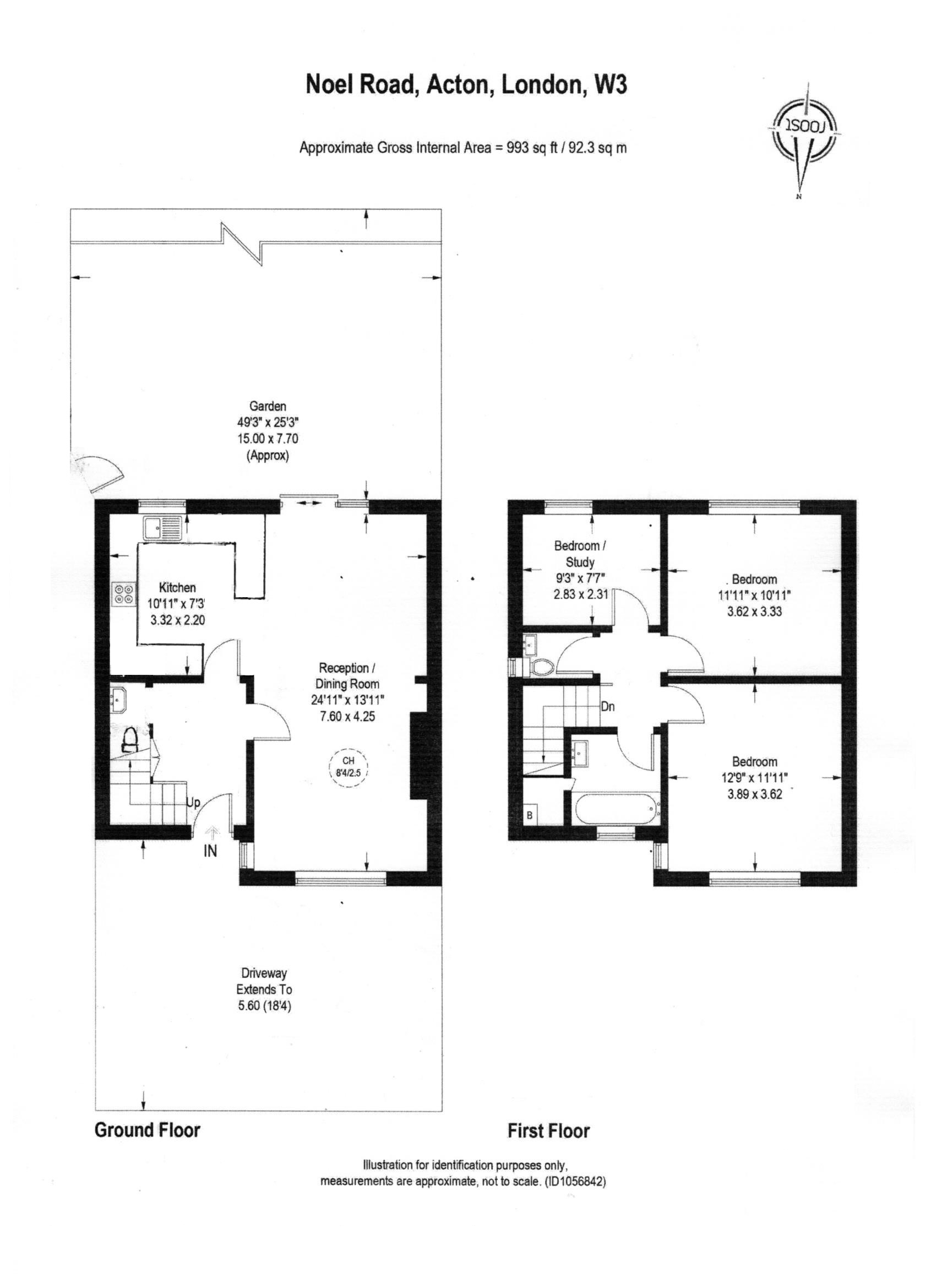
Oaktree (West London) Ltd is delighted to present this beautiful three-bedroom semi-detached house with a charming rear garden, ideally situated in the highly sought-after residential area of West Acton.
West Acton is particularly popular with families and professionals, thanks to its welcoming community atmosphere and excellent transport connections. The property is located in a quiet and highly desirable residential road, directly opposite North Acton Playing Fields, offering attractive green views and a peaceful living environment.
Full Details
THE PROPERTY:
The house comprises three well-proportioned bedrooms: two spacious double bedrooms and one good-sized single bedroom. All bedrooms are furnished with freestanding wardrobes, providing ample storage space.
The bright and airy through living and dining room creates a wonderful open living space, complemented by a modern open-plan kitchen fully integrated with a gas hob and oven, fridge/freezer, washing machine, and dishwasher. The ground floor also benefits from underfloor heating, adding comfort and a touch of luxury.
To the rear, the property features a well-maintained private garden with decking, ideal for outdoor dining and relaxation. The forecourt provides off-street parking for up to two cars.
LOCATION:
West Acton is especially well known for its established Japanese community, with the Japanese School, Maeda Kindergarten, Japanese grocery stores, and authentic Japanese restaurants all within easy reach. This makes the area particularly convenient for Japanese families or those wishing to benefit from these amenities.
Situated directly opposite North Acton Playing Fields, the property enjoys immediate access to open green spaces, playgrounds, football pitches, and tennis courts, offering excellent leisure and recreational facilities right on your doorstep.
Local shops, cafés, sports courts, and everyday conveniences are all within walking distance, ensuring both practicality and an excellent quality of life.
TENURE: Freehold
EPC RATING: D
VIEWING BY APPOINTMENT THROUGH OAKTREE (WEST LONDON) LTD.
The measurements shown in the floor plan were taken with a laser measuring tape at the widest points of the rooms and are approximate. Appliances (fridge/freezer, cooker, washing machine, dishwasher, etc.), even if mentioned in the description, are NOT included in the sale. Furthermore, they have not been tested, and we cannot confirm that they are in working order or fit for purpose. The central heating has NOT been tested. Buyers are advised to seek verification from their solicitor or surveyor. Some items shown in photographs may NOT be included unless specifically mentioned within the sales particulars. They may, however, be available by separate negotiation. These particulars do not form part of any offer or contract, nor can their accuracy be relied upon by purchasers, who should satisfy themselves by inspection or otherwise.





























