Walton Way, West Acton, London, W3 0AW
Property Summary
Full Details
Walton Way, West Acton, London, W3 0AW
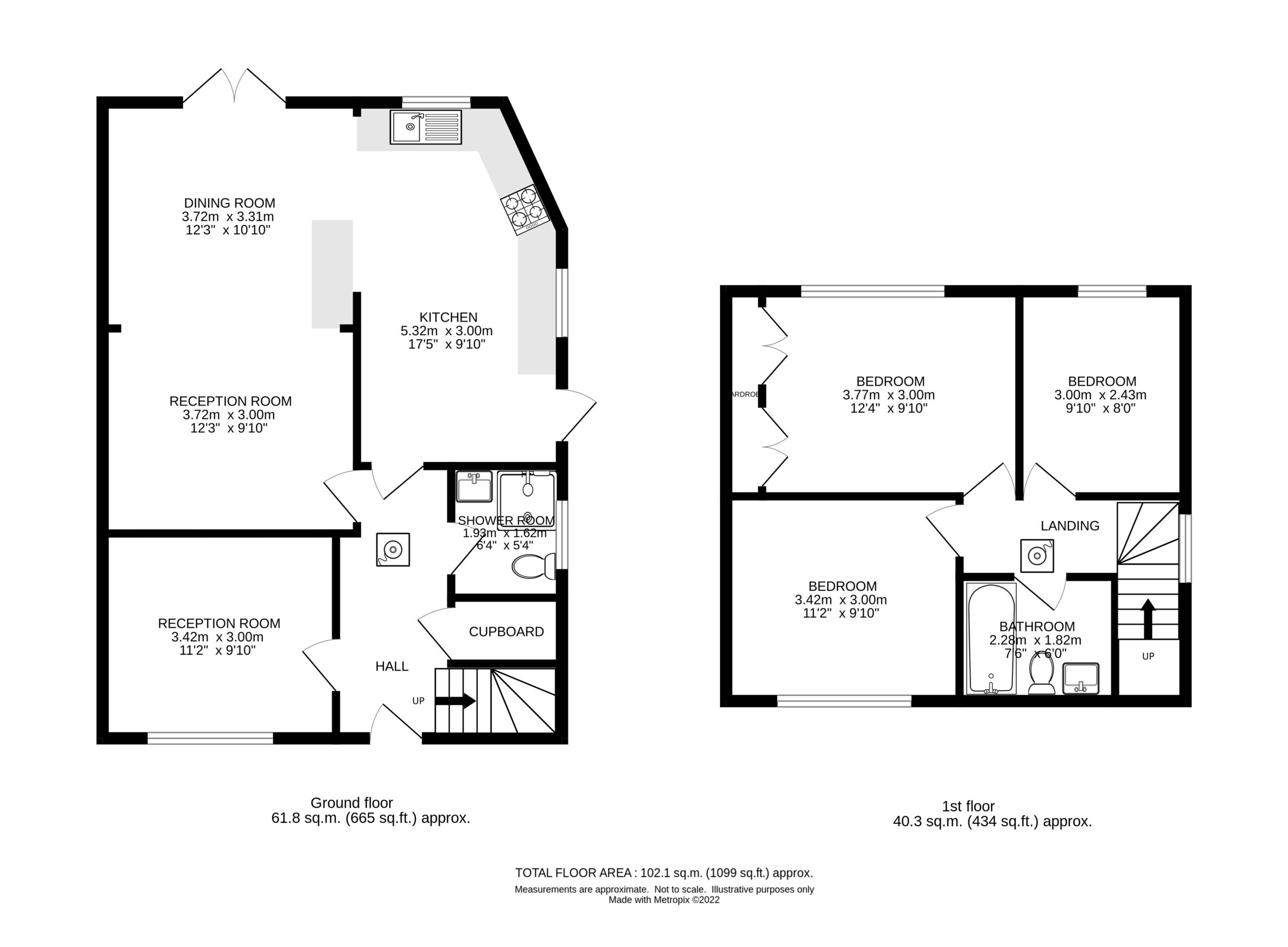
Oaktree is proud to present this beautifully extended 3-bedroom semi-detached house in the highly sought-after area of West Acton. Perfect for families, this property offers spacious living throughout, with 3 bedrooms, 2 receptions, a large rear garden, and a forecourt for parking up to 3 cars.
THE PROPERTY:
The property features three bedrooms. The master bedroom is equipped with fitted wardrobes.
The house boasts a large, modern, fully fitted kitchen with integrated appliances and cabinets. It seamlessly flows into the rear lounge, creating an ideal open-plan living space perfect for family gatherings and entertaining. The front reception room is a versatile space that can also serve as a fourth bedroom if needed.
A fully tiled family bathroom can be found on the first floor. An additional tiled shower room for added convenience. The house is finished with attractive wooden flooring throughout the ground floor and benefits from a security alarm system for added peace of mind.
Externally, the property offers a large rear garden and side gardens, as well as a paved area at the front that provides off-street parking for up to three cars.
LOCATION:
Transport: Only a 5-minute walk to West Acton Station (Central Line), providing excellent links to Central London.
Local Amenities: Easy access to local bus services and the A40 for convenient travel.
Schools: Within a 5-minute walk to West Acton Primary School, and just 10 minutes to Maeda Yochien Japanese School. The renowned Japanese School on Creffield Road is only a 15-minute walk away.
TENURE: Freehold
EPC RATING: D
VIEWING BY APPOINTMENT THROUGH OAKTREE (WEST LONDON) LTD.
The measurements shown in the floor plan were taken with a laser measuring tape at the widest points of the rooms and are approximate. Appliances (fridge/freezer, cooker, washing machine, dishwasher, etc.), even if mentioned in the description, are NOT included in the sale. Furthermore, they have not been tested, and we cannot confirm that they are in working order or fit for purpose. The central heating has NOT been tested. Buyers are advised to seek verification from their solicitor or surveyor. Some items shown in photographs may NOT be included unless specifically mentioned within the sales particulars. They may, however, be available by separate negotiation. These particulars do not form part of any offer or contract, nor can their accuracy be relied upon by purchasers, who should satisfy themselves by inspection or otherwise.











































